Home search
Codice
Tipologia
Uso
Categoria
Città
Zona
Descrizione
Prezzo
Mq
Ordine
CERCA
<< Torna indietro
"COMODO... LUMINOSO... ELEGANTE"
4 o più locali
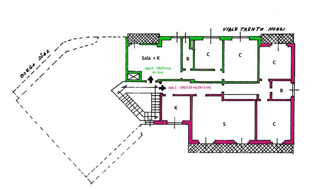
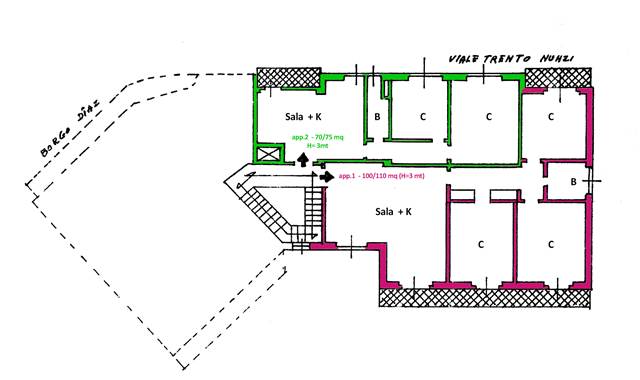
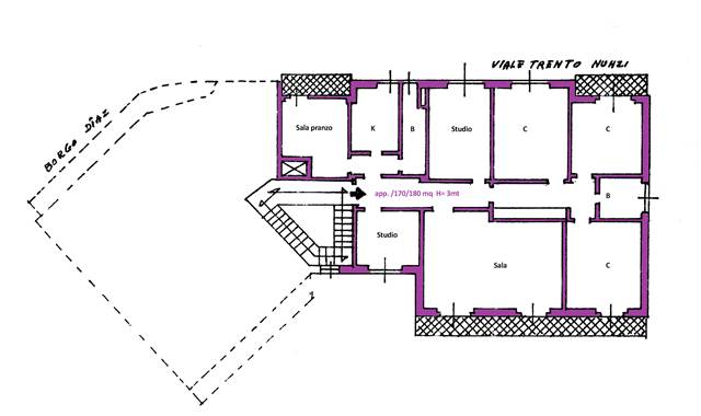
Fermo: proponiamo in vendita appartamento di 192 mq situato al terzo piano con ascensore.
Consistenza dell'immobile: ingresso, ampio soggiorno con vista panoramica, cucina, studio, corridoio, quattro camere, due bagni, tre balconi, cantina, due soffitte e garage.
L'immobile date le sue dimensioni e la posizione centrale in cui è situato può essere utilizzato anche come studio professionale o suddiviso in due unità abitative come da ipotesi di progetto allegato alla documentazione fotografica .Rif. V0223 Classe energetica: in fase di valutazione. Per maggiori informazioni contattare Arcaica Immobiliare tel. 3895632603
Prezzo
138.000,00 EUR
Mq
192
Classe Energetica
VA
Locali
10
Camere
4
Bagni
2
Box
1
Mq box
20,88
Mq balcone
20,14
Stato Immobile
Come da Origini
Grado
Signorile
Posizione
Centro
Panorama
Vista Aperta
Piano
Terzo
Lati Liberi
3
Giardino
No
Tipo Soggiorno
Doppio
Tipo Cucina
Abitabile
Riscaldamento
Autonomo
Tipo Riscaldam.
Caldaia
Tipo Impianto
Radiatori
Fonte Energetica
Metano
Acqua Calda
Autonoma
Infissi
Legno
Persiana
Tapparella PVC
Cantina - Solaio
Entrambe
info@arcaicaimmobiliare.it +39 389 5732603
Cookie preference