Home search
Codice
Tipologia
Uso
Categoria
Città
Zona
Descrizione
Prezzo
Mq
Ordine
CERCA
<< Torna indietro
" CASA SINGOLA IN ZONA SERVITA "
Casa singola
Porto San Giorgio (FM): in zona semicentrale a pochi passi dai servizi, proponiamo in vendita casa singola di 235,89 mq commerciali con corte esclusiva dotata di accesso pedonale e carrabile.
L'immobile è costituito da:
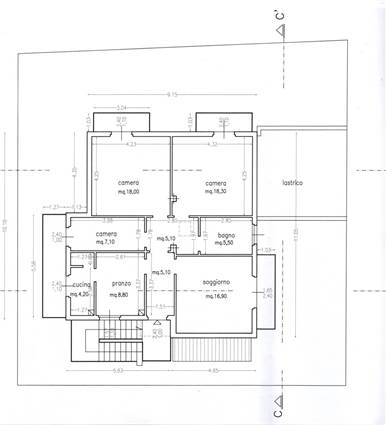
al piano terra appartamento di circa 102 mq composto da ampio soggiorno con cucina a vista, disimpegno, due camere matrimoniali , studio, bagno, lavanderia con wc;
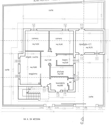
al piano primo appartamento di circa 103 mq composto da ingresso, soggiorno, cucina, disimpegno, due camere matrimoniali, studio/camera, bagno e quattro balconi di circa 18 mq.
L'immobile inoltre dispone di un ripostiglio di circa 23 mq con doppio ingresso dalla corte privata di 175 mq.
Tale soluzione ideale anche per due nuclei familiari è collocata in una zona residenziale, tranquilla e ben servita. Rif. V0292, per maggiori informazioni contattare Arcaica Immobiliare tel. 3895732603
Prezzo
290.000,00 EUR
Mq
235,89
Classe Energetica
G
Locali
8
Camere
6
Bagni
2
Posti auto
2
Mq giardino
175
Mq balcone
17,44
Stato Immobile
Da Ristrutturare
Grado
Signorile
Posizione
Mare
Panorama
Vista Aperta
Piano
Piano Terra
Orientamento
Nord Ovest Sud Est
Totale Piani
Due
Lati Liberi
4
Giardino
Privato
Arredi
Semi Arredato
Tipo Soggiorno
Salone
Tipo Cucina
Semi Abitabile
Riscaldamento
Autonomo
Tipo Riscaldam.
Caldaia
Tipo Impianto
Radiatori
Fonte Energetica
Metano
Acqua Calda
Autonoma
Infissi
Legno
Serramenti
Mediocre
Persiana
Tapparella Legno
Cantina - Solaio
Cantina
Accessori
Camino, Cancello Elettrico, Lavanderia, Ripostiglio

MAPPA

Via Antonello da Messina 8, Porto San Giorgio (FM)
info@arcaicaimmobiliare.it +39 389 5732603
Cookie preference